Business

Owner talks about his plans for restoration of historic building in downtown Macon

When restoration of the historic Washington Block building is complete, downtown Macon will have more than a dozen additional loft apartments.

A new restaurant also is expected to go into a modified and updated space on the first floor that had been home to Michaels on Mulberry’s since 1998 under multiple owners.

The Law Office of Paul Christian is expected to retain its space, while a live-work space has been added.

That’s the word from Ryan Sanders of Atlanta-based Hephaestus Development, the building’s owner and developer.

The historic Washington Block building at the corner of Mulberry and Second Streets in downtown Macon is under restoration by the new owner and developer.
The historic Washington Block building at the corner of Mulberry and Second Streets in downtown Macon is under restoration by the new owner and developer. Jason Vorhees The Telegraph

Washington Lofts

Sanders is developing what he calls the Washington Lofts project.

“We’re thrilled to be a part of the Macon business community,” Sanders said. “We’re part of the business improvement district, and we’re excited about what’s going on in downtown Macon.”

He purchased the Washington Block building at 582 Mulberry St. for $1.1 million from Macon attorney David Dozier in December, according to county property tax and state incorporation records.

With a background in real estate and experience with tax equity and tax credits in relation to renewable energy, mainly solar projects, Sanders said he is applying that expertise to historic tax credits to restore the structure built in 1920.

“A complete remodel,” Sanders said. “We are taking it down to the original framing members and saving only the historic woodworking and such that we’re able to save through working in collaboration with the Macon Historic Foundation.

“And then we’re completely building back with modern construction techniques. It’s a significant renovation that’s going on.”

Sanders said he’s assembled a local team: General contractor Stroud and Company, architect Bob Brown and Robinson Home interior design.

“To the extent possible, we’ve tried to make the redevelopment as Macon-centric as possible,” Sanders said.

The three-story building is being restored in such a way that Sanders said he was able to capture state and federal tax credits.

“That tax credit allows us to both maintain the historical integrity of the building … (and) to finish it out with Class A features but still position it to be able to lease it out at a rate that’s commensurate with what’s going on in downtown Macon now,” he said.

The historic Washington Block building at the corner of Mulberry and Second Streets in downtown Macon is under restoration by the new owner and developer.
The historic Washington Block building at the corner of Mulberry and Second Streets in downtown Macon is under restoration by the new owner and developer. Jason Vorhees The Telegraph

Taking shape

The second and third floors are being converted into “studio efficient apartments” that are about 700 square feet with full kitchens and baths.

“Residential apartments are so important for a community because if you get people living in these apartments then you have people shopping in the stores and you have more foot traffic on the sidewalks and that keeps the sidewalks more safe,” Sanders said. “So it’s just good to get more people living in the downtown area.”

Sanders said he hopes to bring the apartments to market by November.

He doesn’t have a new restaurant tenant yet.

“We felt that it was best to completely renovate the restaurant space, modernize it and get it up to today’s standards, and it’s really challenging for a restaurant to come out of COVID and then shut down again for another renovation,” Sanders said.

”So, all parties felt like the best path forward for that space was to amicably part ways with the existing restaurant tenant and renovate the space and then I’ll bring it back on the market towards the end of this year, and we’ll be looking for a new restaurant tenant.”

Tim Obelgoner, owner of Michael’s on Mulberry, could not be reached for comment.

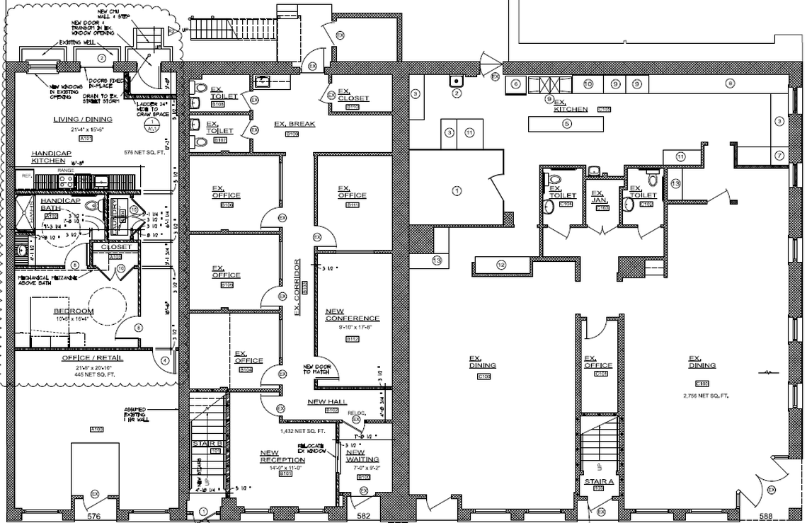
Plans for first floor of the historic Washington Block Building now under renovation in downtown Macon.
Plans for first floor of the historic Washington Block Building now under renovation in downtown Macon. Courtesy Ryan Sanders of Hephaestus Development

The live-work space on the first floor is built out to where it has store frontage with a kitchenette in the back. The space could be an office with a kitchenette, or potentially a residential apartment, Sanders said.

“Quite frankly, we’ll let the market decide what’s the best usage of that space,” he said.

Sanders also is working on another, potential project to develop 55 residential units along the 300 block of Seventh Street, having won approval from the Bibb County Planning and Zoning Commission. But that project isn’t a done deal yet, he said.

The historic Washington Block building at the corner of Mulberry and Second Streets in downtown Macon is under restoration by the new owner and developer.
The historic Washington Block building at the corner of Mulberry and Second Streets in downtown Macon is under restoration by the new owner and developer. Jason Vorhees The Telegraph

Synergy

A key factor in the decision to take on the Washington Lofts project was the existing redevelopment momentum in downtown Macon, Sanders said.

“We are not recreating the wheel, right? There’s a good thing going on in downtown Macon, and we’re just kind of joining the party, right? We saw that this type of development can be successful in a lot of markets. But you’ve got to have a community that you’re excited about investing in and Macon gives us that opportunity,” he said.

Sanders also gave a shout out to NewTown Macon.

“When we got to town, the progress already had been started,” he said. “There was already momentum behind the revitalization, and I would say that NewTown Macon is a large reason why there was already momentum.”

The historic Washington Block building at the corner of Mulberry and Second Streets in downtown Macon is under restoration by the new owner and developer.
The historic Washington Block building at the corner of Mulberry and Second Streets in downtown Macon is under restoration by the new owner and developer. Jason Vorhees The Telegraph

This story was originally published July 13, 2022 at 12:10 PM.

BP
Becky Purser
The Telegraph
Becky covers new restaurants, businesses and developments with some general assignment reporting in Warner Robins and the rest of Houston County. She’s a career journalist with ties to Warner Robins. Her late father retired at Robins Air Force Base. She moved back to Warner Robins in 2000. Support my work with a digital subscription
Get unlimited digital access
#ReadLocal

Try 1 month for $1

CLAIM OFFER